14Wynajmę hale całkowita powierzchnia 600m2 biuro 70m2 wiata 220m2 płać betonowy 2,5ha. Ogrzewanie gazowe oraz rekuperacja. ...
Ogłoszenia z okolicy
3Do wynajęcia w 1 budynku : a) na wynajem hala- warsztat 2 wjazdy : z kanałem dla ciężarowych - 11 m długości , ze ...
4Wynajmę lokal handlowy/usługowy o powierzchni 150 m² w Pysznicy, przy ul. Wolności 85, w pobliżu głównej ...
3Sprzedam lokal handlowy/usługowy o powierzchni 150 m² w Pysznicy, przy ul. Wolności 85, w pobliżu głównej ...
3Wynajmę lokal handlowy/usługowy o powierzchni 150 m² w Pysznicy, przy ul. Wolności 85, w pobliżu głównej ...
12Sprzedam duży budynek biurowo-produkcyjno-usługowy o powierzchni użytkowej około 1000m2, położonym na działce o ...
Wynajmę lokal w Stalowej Woli (ul. Okulickiego 1b). Cena wynajmu to 1600 zł + opłata za media.
Sprzedam lokal usługowo-biurowy znajdujący się na I-szym piętrze budynku ul. Jana Pawła II 13. Składa się z 2-ch ...
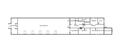
Posiadamy do wynajęcia kompleks pięciu pomieszczeń użytkowych o łącznej powierzchni ok. 400 m2, w tym jedno ...
Posiadamy do wynajęcia kompleks pięciu pomieszczeń użytkowych o łącznej powierzchni ok. 400 m2, w tym jedno ...
8Do wynajęcia lokal użytkowy 40 m 2 w pawilonie wolno-stojącym w centrum Stalowej Woli przy ul. Okulickiego. Lokal składa ...
2Do wynajęcia (w terminie od zaraz) jest lokal usytuowany w centrum Stalowwej Woli, przy ulicy K.E.N. 11 pasaż parter. ...
4Do wynajęcia oferujemy lokal biurowy w bardzo dobrej lokalizacji przy ulicy Popiełuszki 6 w Stalowej Woli: - lokal 45m2 - ...

Na wynajem lokal użytkowy ponad 38 m² centrum Stalowej Woli przy ul. Popiełuszki – jedna z głównych arterii ...
Lokal do wynajęcia w Rozwadowie w rynku z dwoma pomieszczeniami połączonymi 70 m2.
CENA WYNAJMU DO NEGOCJACJI. Lokal użytkowy do wynajęcia – ul. Jana Pawła II 2B, 1 piętro, 104 m² + opcjonalne ...
Witam, wynajmę halę o powierzchni od 120 do 600 m2. Znajdująca się w centrum miejscowości Jeżowe. Obiekt z ...

Nowa Sarzyna, centrum, powiat Leżajsk, województwo podkarpackie, lokal komercyjny, wynajem, 102 mkw, 2000 zł. , mozliwa ...
16Oferta dodana za pomocą Multiportalu BeBroker Na sprzedaż nieruchomość położona w miejscowości ...
sprzedam , mozliwa sprzedaz lokalu w nowej sarzynie ul mickiewicza 2 , lokla ma 100m parter , duze witryny w centrum mista , ...
do sprzedania , wynjecia lokal w nowej sarzynie ul mickiewicza 2 , lokal na parterze , 2 wejscia , duze witryny
Do wynajęcia lokal po sklepie w Woli Rzeczyckiej (8
Do wynajęcia lokale biurowe , handlowe w Dąbrowie Rzeczyckiej112
Wynajmę budynek w Woli Rzeczyckiej . Wyremontowany , ocieplony z klimatyzacja .
9Poczta Polska S.A. Region Infrastruktury Południe II oferuje do wynajęcia lokale użytkowe o łącznej powierzchni 154,16 ...
13Biura do wynajecie w TArnobrzeskiej Specjalnej Strefie Ekonomicznej nowy budynek, ul.Strefowa 5,Tarnobrzeg. Parking przy ...
16DO WYNAJECIA ,ul. Strefowa, Tarnobrzeg/Machów, budynki znajdują się w Strefie Ekonomicznej TSSE. Wolne od pażdziernika ...
16DO wynajęcia oferujemy: budynek produkcyjny, namioty magazynowe i ogrodzoną działkę 1/ parterowy budynek o łącznej ...
14Do wynajęcia: - nowoczesna HALA magazynowo produkcyjna w Tarnobrzeskiej Specjalnej Strefie Ekonomicznej, ogrzewana i ...
4Prezentujemy do wynajmu halę o powierzchni 1760 m2. Hala położona jest w okolicy Łańcuta przy drodze krajowej. Hala ...
4Prezentujemy do wynajmu halę produkcyjno- magazynową o powierzchni 1250m2 . Hala położona jest przy drodze krajowej ...






























